ご希望日時を
指定ください
指定ください
この物件のお問合せ
貸家・借家 太秦西野町貸家
京都市右京区太秦西野町
家賃60,000円
共益----
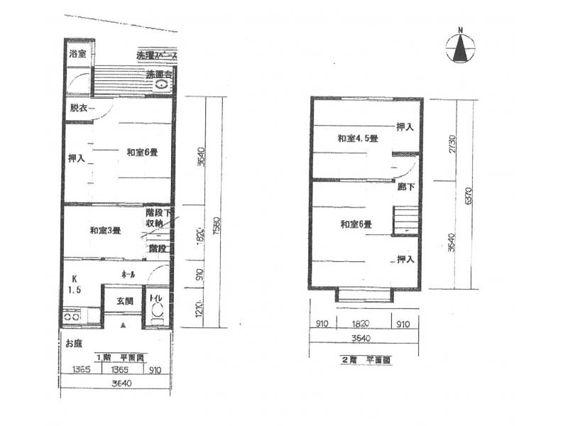
間取4K
おすすめポイント
2025年5月改装済み(キッチン・洗面台新調)、収納多し、前道広いです
この物件のお問合せ
お電話での問合せは:075-864-0012
担当:井上
【情報更新日:2026年03月05日】 【次回更新予定日:2026年03月19日】
| タイプ | 貸家・借家 | 物件番号 | No 11668 |
|---|---|---|---|
| 所在地 | 京都市右京区太秦西野町8-3 住所から地図を調べる |
||
| 交通 |
京福 嵐山本線帷子ノ辻駅 9分 |
||
| 間取詳細 | |||
| 家賃 | 60,000円 | 共益費 | ---- |
| 礼金 | 25万円 | 敷金 | ---- |
| 保証金 | ---- | 敷引金 | ---- |
| 面積 | 50.22m² | 向き | |
| 階/階建 | --/2階建 | 構造 | 木造 |
| 契約期間 | 2年 | 更新料 | 更新料 1ヶ月分 |
| 現況 | 空室 | 引渡し | 即時 |
| 火災保険 | 要(\20,000 ) | 駐車場 | 無 |
| 小学校区 | 南太秦小学校区 | 中学校区 | 太秦中学校区 |
| 築年月 | S45/06 | 取引態様 | 仲介 |
| 諸費用 | ハウスクリーニング代 \30,000、 | ||
| 入居費用 | 392,400円 初期費用のめやすです 詳細はお問合せください |
||
| 特色 | バストイレ別、室外洗濯機置場、独立洗面台 | ||
| 備考 | 2025年5月改装済み(キッチン・洗面台新調)、収納多し、前道広いです | ||
| アイコン | |||
太秦西野町貸家【11668】 のお問合せ
お電話での問合せは:075-864-0012
担当:井上
[この物件をスマホ携帯で確認]
賃貸担当:
井上 光介(いのうえ こうすけ)
「とりあえず見てみたい」でも大歓迎です。
右京区専門で多数の物件を取り揃えています。お客様のこだわり条件にピッタリの物件お探しします。










